Vous souhaitez gagner des mètres carrés supplémentaires sans déménager afin de pouvoir accueillir vos amis ?
Ou louer un espace indépendant de votre maison ?
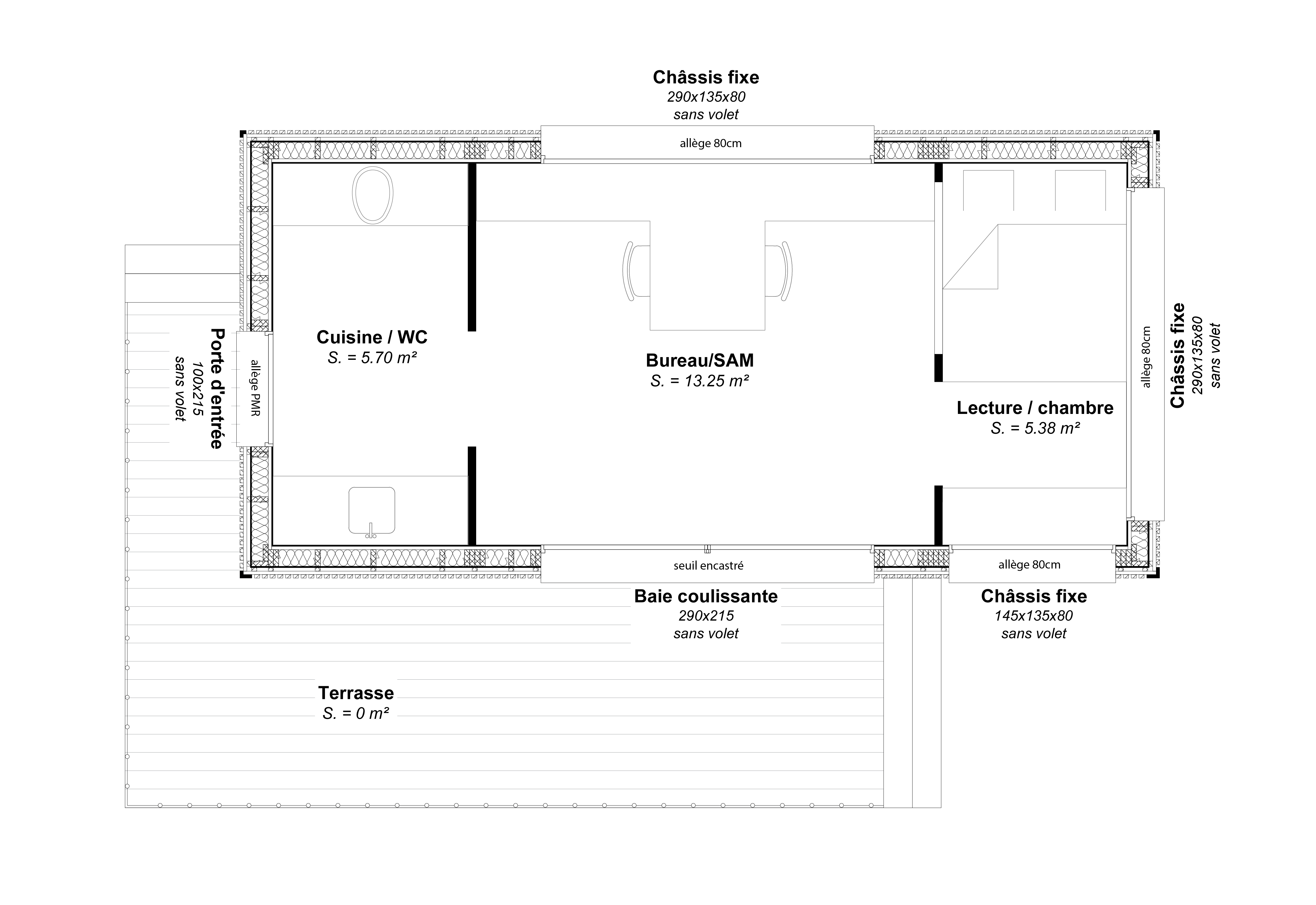
Les équipes Homybox ont imaginé la solution idéale pour obtenir de l’espace en plus, valoriser votre habitation et générer un complément de revenu.


* Agencement sur mesure, adapté à votre projet et votre budget. Les tarifs diffèrent en fonction des matériaux sélectionnés et de la surface de chaque module.